I migliori immobili in vendita e affitto a Milano

Anche in una città come Milano, dove le opportunità sono molte e diversificate, trovare la casa dei sogni non è sempre facile.
La Brambilla Immobili Milano è a vostra disposizione con un servizio completo. Vi proporremo i migliori immobili in vendita e in affitto, offrendo non solo un servizio di intermediazione, ma anche di consulenza e assistenza, compreso il supporto nel disbrigo delle pratiche.
Contattateci per fissare un appuntamento con i nostri consulenti.

Oltre 200 m²

Largo V° Alpini 15
Milano
panoramica residenza di
239 mq
9° piano
cantina
possibilità Box e P. auto
Rif. LargoVAlpini
Comune/Città: Milano
Zona: Pagano / V. Monti
Anno di costruzione stabile: 1962
M²: 239 m²
Piano 9°
Cantina piano S1
Prezzo: € 2.500.000,00
Box € 70.000,00
P. Auto € 30.000,00
APE: in corso di certificazione
Descrizione
Nel cuore di uno dei quartieri storici di Milano, dove le eleganti e residenziali vie di Mario Pagano e Vincenzo Monti si incontrano, proponiamo in vendita un esclusivo e panoramico appartamento al 9° piano di uno degli storici “Grattacieli Gronchi”, progettati ed edificati nel 1962 dal celebre architetto Luigi Mattioni.
Con una superficie di 230 mq oltre ad un’ampia balconata, questa residenza offre da tutti i principali ambienti una splendida vista panoramica sullo skyline della città e con la sua tripla esposizione gode di un'eccezionale luminosità naturale. I Grattacieli Gronchi, residenziali e signorili offrono servizio di portierato tutto il giorno oltre ad un grande giardino condominiale con piscina riscaldata, perfetta per i mesi estivi.
L’immobile, che necessita di essere rivisto e personalizzato, ha una distribuzione degli spazi estremamente razionale ed è così composto: grande ed elegante ingresso che conduce all’ampia zona living affacciata sulla vivibile e panoramica balconata con splendida vista, sala da pranzo separata e studio. La zona di servizio è composta da cucina abitabile con ulteriore ingresso e accesso diretto alle scale di servizio e al montacarichi, camera e bagno di servizio. La zona notte padronale ha una master-room con bagno en-suite, due grandi camere, bagno e ampio corridoio guardaroba.
La proprietà dispone anche di cantina, ampio box e posto auto scoperto.
Una residenza che rappresenta una rara opportunità di vivere in un’icona dell’architettura milanese, in un ambiente raffinato e funzionale.
VENDUTO
Brivio Beverate (LC)Via G. Perinetti 24
VILLA
579 mq
oltre 2.150 di giardino privato
cantina
Box
Rif. LargoVAlpini
Comune/Città: Milano
Zona: Pagano / V. Monti
Anno di costruzione stabile: 1962
M²: 239 m²
Piano 9°
Cantina piano S1
Prezzo: € 2.500.000,00
Box € 70.000,00
P. Auto € 30.000,00
APE: in corso di certificazione
Descrizione
Nel cuore di uno dei quartieri storici di Milano, dove le eleganti e residenziali vie di Mario Pagano e Vincenzo Monti si incontrano, proponiamo in vendita un esclusivo e panoramico appartamento al 9° piano di uno degli storici “Grattacieli Gronchi”, progettati ed edificati nel 1962 dal celebre architetto Luigi Mattioni.
Con una superficie di 230 mq oltre ad un’ampia balconata, questa residenza offre da tutti i principali ambienti una splendida vista panoramica sullo skyline della città e con la sua tripla esposizione gode di un'eccezionale luminosità naturale. I Grattacieli Gronchi, residenziali e signorili offrono servizio di portierato tutto il giorno oltre ad un grande giardino condominiale con piscina riscaldata, perfetta per i mesi estivi.
L’immobile, che necessita di essere rivisto e personalizzato, ha una distribuzione degli spazi estremamente razionale ed è così composto: grande ed elegante ingresso che conduce all’ampia zona living affacciata sulla vivibile e panoramica balconata con splendida vista, sala da pranzo separata e studio. La zona di servizio è composta da cucina abitabile con ulteriore ingresso e accesso diretto alle scale di servizio e al montacarichi, camera e bagno di servizio. La zona notte padronale ha una master-room con bagno en-suite, due grandi camere, bagno e ampio corridoio guardaroba.
La proprietà dispone anche di cantina, ampio box e posto auto scoperto.
Una residenza che rappresenta una rara opportunità di vivere in un’icona dell’architettura milanese, in un ambiente raffinato e funzionale.
VENDUTO
Via Alvise Cadamosto 2
Milano
Zona: P.ta Venezia - Lavater - Buenos Aires
Rif. Cadamosto - 150mq
Comune/Città: Milano
Zona: Porta Venezia - Lavater - Buenos Aires
Anno di costruzione stabile: 1930
M²: 150 m²
Piano 1°
Cantina piano S1
Richiesta: € 1.190.000,00
APE: F - 141,55 Kwh/mq
Descrizione
In un raffinato stabile anni '30, magnificamente conservato nelle sue parti comuni, proponiamo in vendita un esclusivo appartamento di 150 mq recentemente ristrutturato, situato in una delle zone più richieste e autentiche di Milano: Porta Venezia.
 
 L’appartamento è ubicato tra Piazzale Lavater e Corso Buenos Aires, una delle principali arterie commerciali d’Europa, rinomata per i suoi negozi, locali e servizi, nonché a pochi minuti da Corso Venezia, splendida via storica costeggiata da eleganti palazzi ottocenteschi e giardini rigogliosi.
 
 Perfettamente servito da metropolitana (MM1 Porta Venezia) e passante ferroviario, l’immobile gode di una posizione strategica che unisce la vivacità della città con la tranquilla, silenziosa e soleggiata piazza della basilica Santa Francesca Romana.
 
 L’abitazione, caratterizzata da una doppia esposizione e da una straordinaria luminosità, si apre su un ampio ingresso di rappresentanza che conduce a un soggiorno triplo di grande respiro, perfetto per accogliere e vivere momenti conviviali.
 
 La cucina abitabile, con affaccio su un balcone interno arioso e silenzioso, è pensata per chi ama coniugare funzionalità e stile.
 
 La zona notte è composta da una master room con cabina armadio e bagno en suite, una seconda ampia camera matrimoniale, un secondo bagno e una comoda lavanderia separata. Possibilità di ricavare facilmente una terza camera da letto senza compromettere l’equilibrio degli spazi.
 
 Completano la proprietà una comoda cantina e la splendida vista su una tranquilla e soleggiata piazza con chiesa, che conferisce charme e quiete all’intero contesto.
 
 Un’abitazione di grande eleganza, perfetta per chi cerca comfort, raffinatezza e la comodità di vivere nel cuore storico e vivace di Milano.
 
  
Via Bullona 12
ad. C.so Sempione / Losanna
LOFT abitativo 178 mq
Rif. Loft178-Bullona
Comune/Città: Milano
Zona: Corso Sempione / MM Gerusalemme
Anno di costruzione stabile: 2024
M²: 178 m²
Piano terra e primo
Cantina
Prezzo: € 975.000
APE: in corso di certificazione
Descrizione
Nella tranquilla via Bullona, nelle immediate vicinanze di Corso Sempione e via Losanna, a pochi metri da tutti i servizi commerciali e mezzi pubblici (MM Gerusalemme), proponiamo all’interno di un piccolo Palazzo d’epoca esclusivo Loft Abitativo Gas Free di NUOVA COSTRUZIONE che consente di vivere in città l’esigenza di ampi spazi interni e ambienti contemporanei e moderni in classe energetica A.
L’immobile, di 178 mq, è così composto: ingresso privato, ampia zona living con grande cucina e salone, 3 camere, 3 bagni oltre a giardino/cortile privato; gli ambienti sono ben distribuiti e suddivisi tra i due livelli collegati da elegante e coreografica scala interna. L’appartamento è caratterizzato da notevoli altezze interne e ampie finestrature. Capitolato e rifiniture di pregio. Ampia Cantina collegata internamente.
VENDUTO
Via Saverio Mercadante, 4
Rif. Mercadante - 173 oltre 50 mq di Terrazzo
Comune/Città: Milano
Zona: Corso Buenos Aires / MM Caiazzo
Anno di costruzione stabile: primi '900
M²: 190 m²
Piano terra
Possibilità Cantina
Prezzo: € 1.040.000
APE: in corso di certificazione
Descrizione
In via Mercadante 4, nelle immediate vicinanze della MM Caiazzo e del commerciale e storico Corso Buenos Aires, in splendido palazzo dei primi del Novecento, oggetto di totale ristrutturazione nelle parti comuni, proponiamo interessante appartamento di 173 mq oltre 50 mq di cortile/terrazzo di proprietà. L’appartamento, di nuova realizzazione e in fase di ultimazione, rifinito con materiali di grande pregio è dotato di tutti i comforts, totalmente autonomo ed è così composto: ingresso, ampio soggiorno doppio, cucina abitabile, 3 camere e 3 bagni. Tutti gli ambienti affacciano e accedono allo splendido e riservato terrazzo/cortile di 50 mq in proprietà. Possibilità cantina.
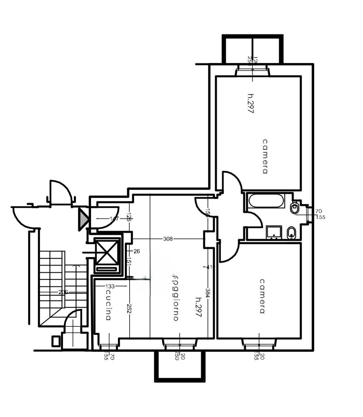
VIA FRANCESCO PETRARCA, 4
ELEGANTE RESIDENZA MQ 237
Rif. PETRARCA237 - LOCAZIONE
Comune/Città: Milano
Zona: Petrarca /Revere
Piano: Terzo
Richiesta: € 72.000 annui
Spese Condominiali € 800 mens.
ACE: in corso di certificazione
Descrizione
Via Petrarca angolo via Revere, in una delle zone di Milano culturalmente e storicamente rilevanti, a pochi metri dalle prestigiose via Vincenzo Monti e piazza Tommaseo proponiamo in locazione un’esclusiva residenza di 237 mq al terzo piano di un palazzo d’epoca dei primi del Novecento recentemente restaurato con servizio di portierato diurno.
L’appartamento, in ottimo stato conservativo, ha mantenuto il sapore dell’epoca ed è razionalmente suddiviso: ampio ingresso padronale, luminoso salone doppio di rappresentanza con balcone affacciato su via Petrarca, grande cucina abitabile arredata su misura (Dada) completa di elettrodomestici, elegante corridoio attrezzato di armadiature su misura, camera matrimoniale con balcone, seconda ampia camera doppia con balcone affacciata sul cortile interno, 2 bagni padronali oltre terza camera di servizio con annesso bagno / lavanderia. Libero.
NON DISPONIBILE
SANT'ILARIO BAGANZA
FELINO (PR)
Rif. VR - VENDITA
Comune/Città: Sant'Ilario Baganza - Felino (PR)
Via Damenti 19
ACE: in attesa di certificazione
Tenuta con piscina e Torre storica
Prezzo € 1.000.000
Descrizione
Sui Colli di Parma, a Sant’Ilario Baganza proponiamo in vendita una prestigiosa tenuta integralmente restaurata, situata in un contesto suggestivo e ricco di storia.
La tenuta è così composta: Abitazione principale: circa 700 mq, elegantemente ristrutturata; una Torre storica risalente al 1500, di circa 180 mq, restaurata a rustico; Barchessa con una struttura di 170 mq su pianta, ideale per ricavare due ulteriori piani abitativi; splendida Piscina di 10x6 metri, perfetta per godersi momenti di relax; la proprietà è immersa in 25.000 mq di verde, in parte destinato a giardino.
Questa dimora rappresenta una soluzione ideale sia per Attività ricettive, infatti la proprietà si presta perfettamente per diventare un relais di lusso o un agriturismo esclusivo sia per una Residenza privata per chi desidera vivere in un’oasi di tranquillità circondata dalla natura.
Il borgo di Sant’Ilario Baganza, noto per la sua storica pieve del 1230 situata lungo la Via Francigena, offre un’atmosfera incantevole e autentica. Nei dintorni, la vicina Felino è celebre per la produzione del rinomato salame, mentre gli amanti dello sport troveranno un importante campo da golf nelle vicinanze.
Una proprietà unica, che unisce eleganza, storia e natura.
VENDUTO
PARIGI
ELEGANTE APPARTAMENTO VICINO AL TROCADERO
Rif. VR - VENDITA
Comune/Città: Parigi - Francia
Zona: Trocadero
ACE: G 175 kWh/m²
Piano: quinto
Trattativa riservata
Descrizione
Nella splendida Parigi, nel tipico e storico quartiere del Trocadèro, a pochi metri dalla commerciale Rue Passy, proponiamo in stabile signorile con portineria, splendido e affascinante appartamento al 5° piano, con ascensore, recentemente ristrutturato con materiali di pregio e così composto: salone doppio con balconcino, sala da pranzo con accesso diretto alla cucina, ampia camera padronale con bagno en suite e cabina armadio, 3 camere, di cui due con caratteristico camino e servizi. Cantina. L'appartamento ha un'ulteriore camera al 6° piano di 8mq ca. oltre al box. ACE G- 175 kWh/m².

Fino a 200 m²

Via Paolo Giorza 3
Bergognone/Tortona
Living Tortona
Splendido appartamento
158 mq oltre box di 25 mq
Rif. Giorza158mq
Comune/Città: Milano
Zona: Tortona Design District
Anno di costruzione stabile: 2019
M²: 158 m²
Piano primo e secondo
Box 25 mq
Prezzo: € 1.680.000
Spese Condominiali € 900 mensili
APE: A3 - 66,41 Kwh/mq
Descrizione
In via Privata Giorza, nel cuore della rinomata Zona Tortona, oggi conosciuta come Tortona Design District, punto di riferimento internazionale per moda, arte e creatività, sorge questo appartamento unico nel suo genere: 148mq di abitazione distribuiti su due livelli, con ampi terrazzi - 30 mq - che diventano veri e propri salotti a cielo aperto.
 
 L’abitazione si trova in un elegante e piccolo condominio, unico nel suo genere, di recente costruzione – 2018 -  in classe energetica A. Un piccolo complesso denominato LIVING TORTONA, dallo stile orizzontale dove il silenzio e il verde e i giardini sono i veri protagonisti.
 
 L'appartamento si sviluppa tra il primo e il secondo ed ultimo piano dell’ala interna dell’edificio, ed è così compost: l’ingresso si apre su un ampio terrazzo che accompagna alla luminosa zona living e alla cucina, progettate per la convivialità. Sullo stesso livello, due grandi camere con bagno e lavanderia garantiscono funzionalità e comfort.
 
 Al piano superiore, la suite padronale rappresenta un vero rifugio privato: ampia camera matrimoniale, terrazzo perimetrale che abbraccia la casa, studio e bagno dedicato, per un ambiente raffinato e riservato.
 
 Completano la proprietà un ampio box auto di 25 mq e le finiture di pregio esaltano l’eleganza contemporanea della residenza.
 
 Un appartamento che non è solo casa, ma uno stile di vita: raffinato, luminoso, immerso nel verde e al tempo stesso nel cuore di Milano, tra moda, design e creatività.
 
Via Filarete, 1
Pagano
ad. Via A. Canova - Massena
Splendido appartamento
180 mq
Rif. Filarete180mq
Comune/Città: Milano
Zona: Pagano - Canova - Massena
Anno di costruzione stabile: 1900
M²: 180 m²
Piano primo
Cantina
Prezzo: € 1.700.000
APE: D - 104,10 Kwh/mq
Descrizione
Nel cuore di uno dei quartieri più signorili di Milano, tra Via Massena e Via Canova, proponiamo in vendita un affascinante appartamento di rappresentanza di 177 mq, situato al primo piano nobile di un elegante palazzo dei primi del Novecento.
 
 L’abitazione, finemente ristrutturata con materiali di altissima qualità, accoglie con un ingresso elegante che conduce a un magnifico salone doppio, impreziosito da una balconata affacciata sul verde e caratterizzato da luminosità, silenzio e proporzioni generose, ideali per momenti di convivialità o di quieto relax.
 
 La cucina abitabile, ampia e funzionale, unisce design contemporaneo e comfort e gode di una piacevole vista su un curato giardino interno. A completamento della zona di servizio, un pratico locale lavanderia e dispensa.
 
 La zona notte offre una splendida suite padronale dotata di cabina armadio passante e bagno privato, oltre a due ulteriori camere da letto e un secondo bagno, tutti ambienti pensati per garantire privacy, comfort e funzionalità.
 
 Completano la proprietà una cantina di circa 11 mq.
Una residenza luminosa e silenziosa dove ogni dettaglio racconta gusto, cura e prestigio immersa nell’eleganza senza tempo del contesto milanese più ricercato.
 
  
Un’opportunità unica per chi desidera vivere il fascino della tradizione architettonica con il comfort del vivere moderno, nel cuore di Milano.
SOSPESO
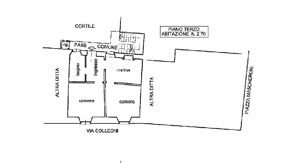
Via Colleoni 40
Bergamo
Città Alta
Appartamento di 110 mq
Rif. BergamoTRilo - 110 mq
Comune/Città: Bergamo
Zona: Città Alta
Anno di costruzione stabile: 1900
M²: 110m²
Piano primo
Prezzo: € 520.000
APE: in attesa di certificazione
Descrizione
Nel cuore di Bergamo Alta, in una delle piazze più affascinanti e ricche di storia, Piazza Mascheroni, proponiamo in vendita un elegante appartamento di 110 mq situato al primo piano di una palazzina d’epoca perfettamente inserita nel contesto storico.
L’abitazione, luminosa e silenziosa, si apre su un accogliente ingresso che conduce a una zona giorno con splendido camino d’epoca e affaccio diretto sulla suggestiva Piazza Lorenzo Mascheroni.
La cucina abitabile, separata e funzionale, è ideale per chi ama vivere gli spazi con convivialità.
La zona notte è composta da due camere da letto, due bagni e un comodo ripostiglio lavanderia.
L’immobile conserva il fascino dell’epoca con travi a vista, infissi originali e dettagli architettonici di pregio, ubicato in una delle più prestigiose posizioni di Bergamo Città Alta.
Un appartamento unico nel suo genere, ideale per chi desidera vivere immerso nella bellezza e nell’autenticità del centro storico di Bergamo Alta, senza rinunciare alla comodità e all’eleganza.
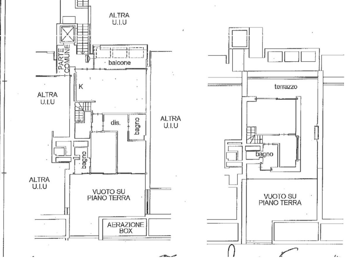
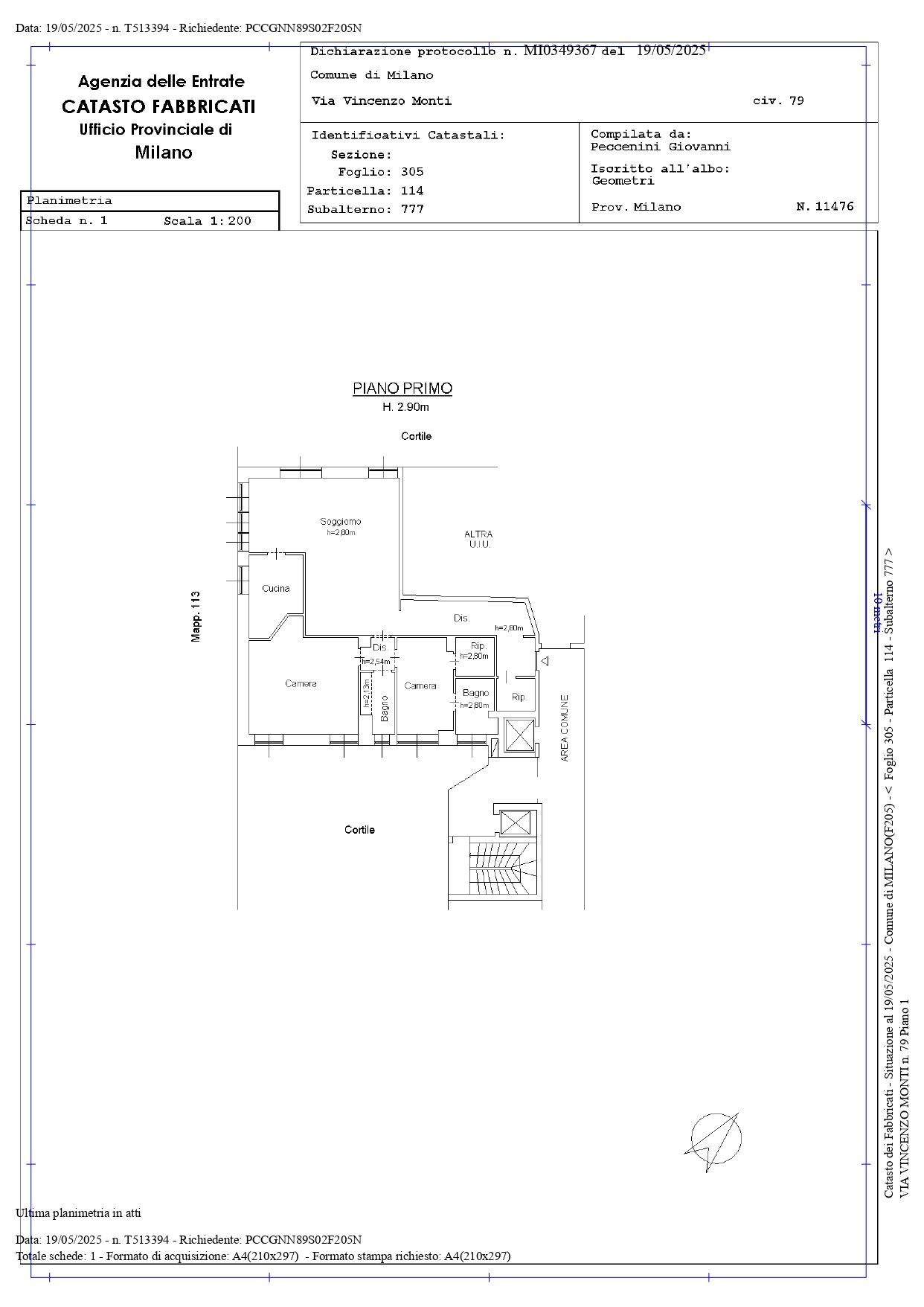
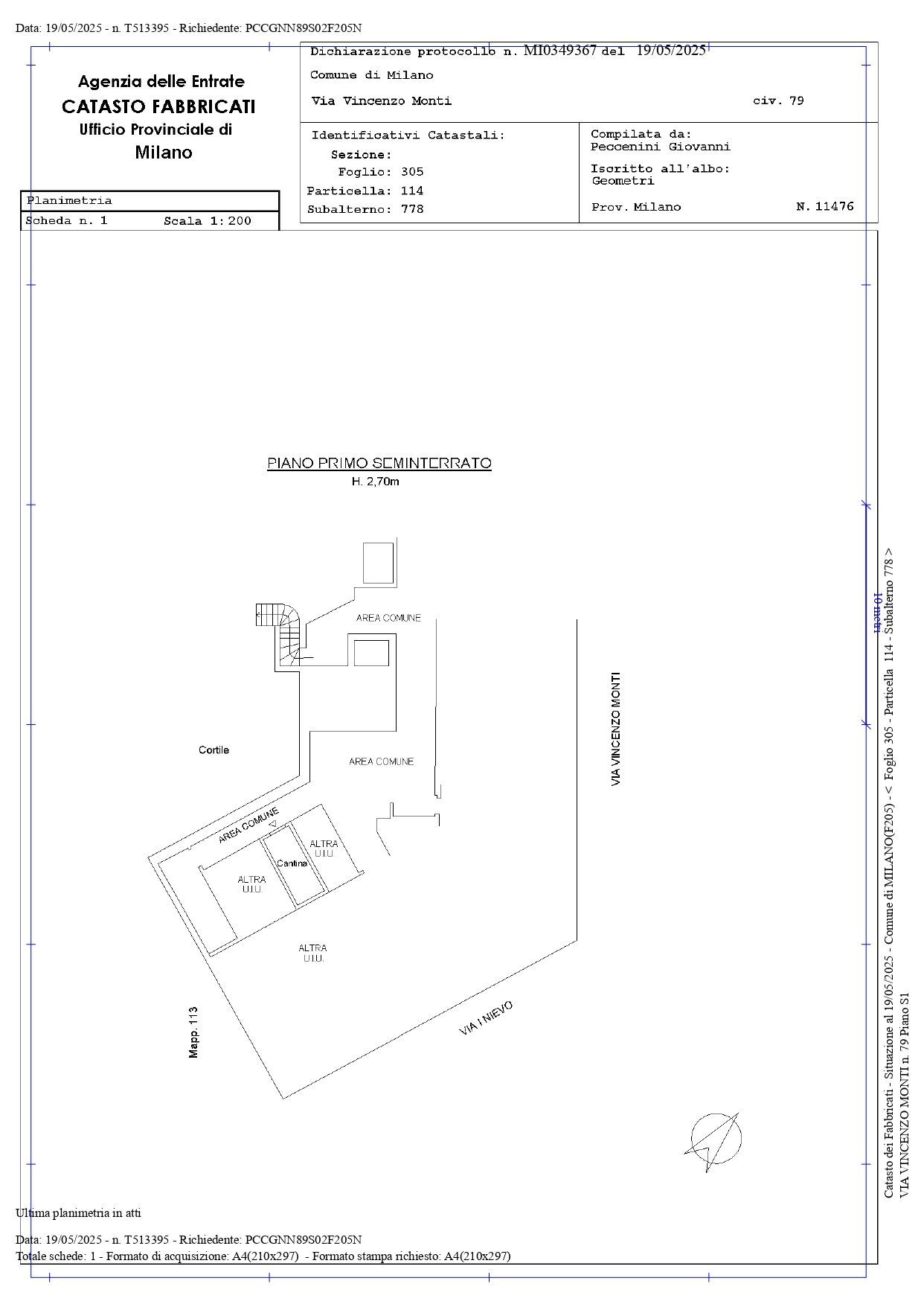
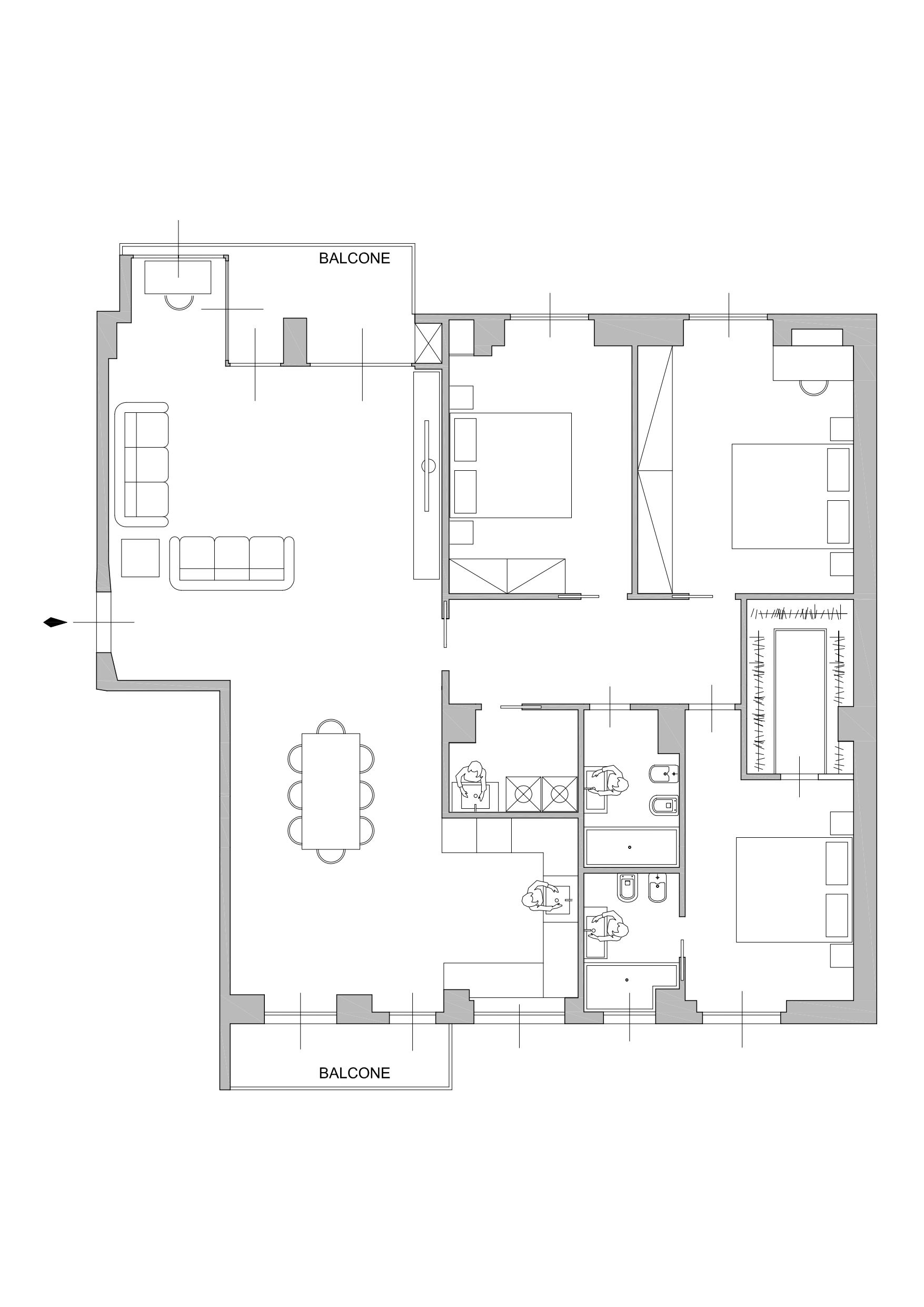
Via Vincenzo Monti 79
ad. City Life - Pagano
Appartamento di 134 mq
Rif. VincenzoMonti - 134 mq
Comune/Città: Milano
Zona: City Life - Pagano
Anno di costruzione stabile: 1956
M²: 134 m²
cantina
Piano primo
Prezzo: € 1.035.000
APE: D - 150,34 KwH/mq
Descrizione
In una delle zone più raffinate e moderne di Milano, all’interno del rinomato Sito Monti, a due passi dal prestigioso quartiere CityLife e dal verde del Parco Pagano, proponiamo in vendita in Stabile progettato da Giò Ponti, un elegante appartamento situato in Via Vincenzo Monti 79. Questa esclusiva area si distingue per il perfetto equilibrio tra eleganza storica e modernità architettonica, offrendo un contesto residenziale di altissimo livello, caratterizzato da tranquillità, sicurezza e servizi di eccellenza.
L’immobile è inserito in un contesto signorile e riservato, godendo di una posizione privilegiata, perfettamente collegata al centro città e circondata da scuole, negozi di qualità, ristoranti e aree verdi, rendendolo ideale per chi desidera vivere l’autentico lifestyle milanese senza rinunciare alla quiete.
L’appartamento, di circa 132 mq sito al primo piano, si distingue per la sua tripla esposizione che assicura silenzio, tranquillità e un’atmosfera accogliente in ogni ambiente. Gli spazi interni sono sapientemente distribuiti e rifiniti con gusto, ideali per una clientela esigente alla ricerca di comfort, stile e funzionalità.
L’ingresso ampio accoglie con eleganti armadiature su misura, conducendo ad un grande salone doppio con zona living e zona pranzo perfetto per ospitare momenti conviviali o semplicemente godersi il relax quotidiano. La cucina, separata e funzionale, è pensata per chi ama vivere la casa in ogni dettaglio.
La zona notte è composta da una raffinata suite padronale, dotata di cabina armadio e bagno finestrato privato, e da una seconda ampia camera da letto anch’essa matrimoniale servita da un ulteriore bagno finestrato. Completa la proprietà una pratica lavanderia/ripostiglio. Cantina di pertinenza.
L’immobile è libero e pronto per essere abitato, ideale per chi desidera vivere nel cuore della Milano più elegante, in un’abitazione che coniuga raffinatezza, riservatezza e praticità. Possibilità garage in locazione nelle immediate vicinanze.
Per ulteriori informazioni o per organizzare una visita privata, non esitate a contattarci.
Corso Sempione 86
ad. C.so Sempione / Losanna
Appartamento di 156 mq
Rif. Sempione156mq
Comune/Città: Milano
Zona: Corso Sempione / MM Gerusalemme
Anno di costruzione stabile: 1950
M²: 156 m²
cantina
Piano primo
Prezzo: € 936.000
APE: in corso di certificazione
Descrizione
In Corso Sempione 86, in uno dei viali più iconici e ricercati di Milano, proponiamo in vendita un razionale appartamento di 156 mq, situato al primo piano di uno stabile signorile anni ’50 con servizio di portineria.
L’immobile, luminoso e affacciato sul verde, è dotato di una piacevole esposizione e rappresenta la perfetta unione tra ampiezza degli ambienti e il potenziale progettuale. Lo stato attuale dell’appartamento richiede un intervento di ristrutturazione, offrendo così l’opportunità unica di modellare gli spazi secondo le esigenze contemporanee, come illustrato da una proposta progettuale già disponibile.
La disposizione interna prevede attualmente un ampio ingresso, un grande soggiorno con ampia finestratura e balcone, cucina abitabile, quattro camere da letto, due bagni finestrati, ripostiglio e zone di disimpegno ben distribuite. Completano la proprietà una cantina di pertinenza. Una soluzione abitativa che soddisfa tutti i vantaggi di una posizione strategica, ben servita da mezzi pubblici, negozi, scuole e ristoranti.
Un’opportunità ideale per famiglie, professionisti o investitori che cercano un’elegante dimora da personalizzare, nel cuore vibrante della città. Possibilità Cantina. LIBERO
Via Bullona 12
ad. C.so Sempione / Losanna
LOFT abitativo 178 mq
Rif. Loft178-Bullona
Comune/Città: Milano
Zona: Corso Sempione / MM Gerusalemme
Anno di costruzione stabile: 2024
M²: 178 m²
Piano terra e primo
Cantina
Prezzo: € 975.000
APE: in corso di certificazione
Descrizione
Nella tranquilla via Bullona, nelle immediate vicinanze di Corso Sempione e via Losanna, a pochi metri da tutti i servizi commerciali e mezzi pubblici (MM Gerusalemme), proponiamo all’interno di un piccolo Palazzo d’epoca esclusivo Loft Abitativo Gas Free di NUOVA COSTRUZIONE che consente di vivere in città l’esigenza di ampi spazi interni e ambienti contemporanei e moderni in classe energetica A.
L’immobile, di 178 mq, è così composto: ingresso privato, ampia zona living con grande cucina e salone, 3 camere, 3 bagni oltre a giardino/cortile privato; gli ambienti sono ben distribuiti e suddivisi tra i due livelli collegati da elegante e coreografica scala interna. L’appartamento è caratterizzato da notevoli altezze interne e ampie finestrature. Capitolato e rifiniture di pregio. Ampia Cantina collegata internamente.
VENDUTO
Via Saverio Mercadante, 4
Rif. Mercadante - 190mq
Comune/Città: Milano
Zona: Corso Buenos Aires / MM Caiazzo
Anno di costruzione stabile: primi '900
M²: 190 m²
Piano terra
Possibilità Cantina
Prezzo: € 1.040.000
APE: in corso di certificazione
Descrizione
In via Mercadante 4, nelle immediate vicinanze della MM Caiazzo e del commerciale e storico Corso Buenos Aires, in splendido palazzo dei primi del Novecento, oggetto di totale ristrutturazione nelle parti comuni, proponiamo interessante appartamento di 173 mq oltre 50 mq di cortile/terrazzo di proprietà. L’appartamento, di nuova realizzazione e in fase di ultimazione, rifinito con materiali di grande pregio è dotato di tutti i comforts, totalmente autonomo ed è così composto: ingresso, ampio soggiorno doppio, cucina abitabile, 3 camere e 3 bagni. Tutti gli ambienti affacciano e accedono allo splendido e riservato terrazzo/cortile di 50 mq in proprietà. Possibilità cantina.
VENDUTO
Appartamento 129 mq
Via Arzaga 4
Soderini / San Gimignano
MM Bande Nere
Rif. Arzaga129
Comune/Città: Milano
Zona: Soderini - San Gimignano
MM Bande Nere
indirizzo via Arzaga 4
M²: 129 mq comm.
Piano Terra
Cantina e solaio pertinenziali
Prezzo: € 545.000
APE: G - 171 Kwh
Descrizione
Immerso nel quartiere Soderini/San Gimignano, a pochi metri dalla MM Bande Nere, nella residenziale via Arzaga 4, in complesso signorile immerso nel verde, proponiamo interessante e silenzioso appartamento di 129 mq comm. con tripla esposizione al piano rialzato. L’appartamento ha una tripla esposizione sul giardino condominiale ed è così composto: ampio ingresso con ripostiglio e armadiatura, soggiorno doppio, cucina abitabile, due camere matrimoniali e due bagni finestrati. Possibilità di creare la terza camera. LIBERO. Cantina e solaio.
VENDUTO
Via Francesco Petrarca 4
Rif. Petrarca196
Comune/Città: Milano
Zona: Via XX Settembre / Piazza Tommaseo
Anno di costruzione stabile: primi '900
M²: 196 m²
Piano Secondo
Cantina
Prezzo: € 2.100.000
APE: G- 171 KwH
Possibilità Box
Descrizione
Via Petrarca angolo via Revere, in una delle zone di Milano culturalmente e storicamente rilevanti, a pochi metri dalle prestigiose via Vincenzo Monti e piazza Tommaseo proponiamo in vendita un’esclusiva residenza di 196 mq al secondo piano nobile di un palazzo d’epoca dei primi del Novecento recentemente restaurato con servizio di portierato diurno.
L’appartamento, in ottimo stato conservativo, ha mantenuto il sapore dell’epoca ed è razionalmente suddiviso: ampio ingresso padronale, rifinito con armadiature su misura, accompagna al luminoso salone doppio con camino in pietra e ampio balcone affacciato sulla via Petrarca, ulteriore ampio locale con boiserie interamente su misura adatto sia a salotto televisione, che a studio o camera ospiti. Importante cucina abitabile con balcone e bagno di servizio completo di lavanderia. La zona notte, ben separata ha una master bed-room con balcone, grande bagno en-suite e doppia cabina armadio; seconda camera con bagno. Ampia Cantina e possibilità Box singolo in Largo V Alpini angolo Revere.
VENDUTO
Via Buonarroti 18
MM Wagner
MM Buonarroti
Rif. VRBuonarroti120
Comune/Città: Milano
Zona: City Life - Marghera
Anno di costruzione stabile: primi '900
M²: 111 m² oltre 20 mq di Terrazzo
Piano Secondo e Ultimo - senza ascensore
Prezzo: € 730.000
APE: G- 171 KwH
Descrizione
Tra le MM Buonarroti e MM Wagner, in Via Buonarroti 18, in palazzo d’epoca fine ‘800, a pochi passi da via Marghera, piazza Piemonte e Corso Vercelli, proponiamo in vendita affascinante appartamento trilocale di 111 mq oltre 20 mq di TERRAZZO al piano e ulteriori due balconi.
L’appartamento è ubicato al secondo e ULTIMO PIANO (senza ascensore) della piccola palazzina interna edificata in epoca successiva rispetto al corpo fronte strada.
L’immobile in buono stato conservativo, silenzio e luminoso, è composto da un ampio ingresso, grande soggiorno e cucina abitabile entrambi con porte finestre con accesso diretto al terrazzo, due camere matrimoniali, un bagno con la possibilità di creare il secondo bagno e il ripostiglio/lavanderia. Libero.
VENDUTO
Via Mercadante, 4
Appartamento plurilocale
Piano Sesto- ATTICO
Rif. VR134
Comune/Città: Milano
Zona: MM Caiazzo
Anno di costruzione stabile: primi '900
Anno di riqualificazione stabile: 2023
M²: 125 m² oltre 17 m² terrazzo
Prezzo: 1.060.000 €
NUOVO - IN CORSO DI REALIZZAZIONE-
CONSEGNA LUGLIO 2023
ACE: in corso di certificazione
Piano: 6- ULTIMO
VENDUTO
VIA CIPRIANI 3
MILANO
MAGGIOLINA
VILLAGGIO DEI GIORNALISTI
Rif. VR 160- VENDITA
Comune/Città: Milano
Zona: Villaggio dei Giornalisti - Maggiolina
Anno di costruzione: 1980
M²: 150 m² comm.
ACE: G - 175 kWh/m²
Piano: 1°
Prezzo € 850.000
box doppio € 50.000
LIBERO
VENDUTO
Descrizione
In via Cipriani, nel rinomato e caratteristico Villaggio dei Giornalisti - Maggiolina, circondato dal verde, in contesto tranquillo e silenzioso, proponiamo in signorile palazzina anni ’80, elegante appartamento di 151 mq oltre 40 mq di terrazzi e balconi ,primo piano, con quadrupla esposizione. L’appartamento, recentemente ristrutturato, è così composto: ampio ingresso, salone triplo con ampia vetrata sul terrazzo, grande cucina abitabile con balcone e porta finestra affacciata al terrazzo, locale lavanderia e ripostiglio; la zona notte, ben separata dalla zona giorno, è composta da ampia camera padronale con terrazzino, ulteriori 2 camere matrimoniali e 2 bagni entrambi finestrati oltre balcone.
Ampio box 43 mq / cantina € 50.000.
Via Mercadante, 4
Appartamento plurilocale
Piano S1
Rif. VR190
Comune/Città: Milano
Zona: MM Caiazzo
Anno di costruzione stabile: primi '900
Anno di riqualificazione stabile: 2023
M²: 190 m²
Prezzo: 1.040.000 €
NUOVO - IN CORSO DI REALIZZAZIONE-
CONSEGNA LUGLIO 2023
ACE: in corso di certificazione
Piano: S1
PORTA NUOVA
VIA MARCORA 11
Rif. VR168 - VENDUTO
Comune/Città: Milano
Zona: Porta Nuova - Repubblica
Anno di costruzione: 1934
M²: 168 m² comm.
Abitazione m² 160
Terrazzo Giardino m² 15
ACE: G - 171 kWh/m²
Piano: 6°
Prezzo € 1.280.000
Box € 45.000
Da Ristrutturare
VENDUTO
Descrizione
Repubblica – Turati: A pochi metri dai rinomati Giardini di Via Palestro, nella silenziosa e signorile via Marcora, in stabile edificato tra il 1934 e il 1935 “ Casa Borgognoni”, proponiamo panoramico e luminoso appartamento di 168 mq con balconi e terrazzo di 15 mq., sito al 6° piano da rivedere. L’appartamento, caratterizzato da una pianta regolare, è oggi così composto: ampio ingresso, soggiorno doppio, grande cucina abitabile, 4 camere e 2 ampi bagni finestrati. LIBERO –Grande Cantina – Box
VIA Priv. DELLA GARANCETTA MM GERUSALEMME
Rif. Garan. A - VENDITA
NUOVA COSTRUZIONE
Comune/Città: Milano
Zona: Sempione Losanna
Anno di costruzione: 2022
M²: 146 m² comm.
Abitazione m² 136
Terrazzo Giardino m² 26
ACE: A4 - 24 kWh/m²
Piano: Terra e 1°
Prezzo € 1.065.000
Box € 70.000
Capitolato di Pregio - Personalizzabile
VENDUTO
Descrizione
Nelle immediate vicinanze della MM Gerusalemme e della via Losanna, in Via Privata della Garancetta, in piccolo contesto di 5 case indipendenti di nuova realizzazione in classe energetica A4, proponiamo soleggiato e silenzioso ampio trilocale di 137 mq su 2 livelli oltre 26 mq di giardino/terrazzo, così composto: ingresso privato, ampio soggiorno con terrazzo, cucina e bagno ospiti; al piano superiore collegato da scala interna, 2 ampie camere e bagno. L’immobile, rifinito con materiali di grande pregio, è dotato di tutti i comfort. Box.
VIA FRANCESCO PETRARCA 4
MILANO
Rif. VR 150- VENDUTO
Comune/Città: Milano
Zona: Revere / Petrarca
Anno di costruzione: 1900
M²: 150 m² comm.
ACE: G - 175 kWh/m²
Piano: 1°
Prezzo € 1.170.000
VENDUTO
Descrizione
Via Francesco Petrarca, una delle zone residenziali più esclusive di Milano, in palazzo storico dei primi del ‘900 restaurato e riportato al suo splendore in tutte le parti comuni, proponiamo splendido appartamento di 150 mq con salone doppio affacciato sull’elegante via Revere, al 1° piano della scala della corte interna (al momento senza ascensore), da personalizzare. Libero.
VIA GUERRAZZI 9 - ARCO DELLA PACE
Rif. VR127 - VENDUTO
Comune/Città: Milano
Zona: Arco della Pace
Anno di costruzione: 1909
M²: 127 m² comm.
ACE: G - 175 kWh/m²
Piano: 5° e ultimo (recupero di sottotetto)
Trattativa riservata VENDUTO
Descrizione 
Nella prestigiosa e tranquilla Via Guerrazzi, in stabile del 1909 completamente ristrutturato nelle parti comuni, con splendidi affacci sull'Arco della Pace, proponiamo attico di 127 m² comm. al 5° e ultimo piano - recupero di sottotetto - ristrutturato e consegnato nuovo con capitolato di pregio e possibilità di personalizzazione. Cantina pertinenziale. Nessuna spesa di mediazione.
VIA ARZAGA, 4
Rif. VR117 -
Comune/Città: Milano
Zona: San Gimignano/Soderini-
MM BANDE NERE
Anno di costruzione: 1975
M²: 117 m² comm.
ACE: G- 171 kW/H
Piano: 4°
Prezzo: 600.000 €. - 40.000 €. box
VENDUTO
Descrizione
Nella residenza di via Arzaga n.4 , quartiere Soderini/San Gimignano, a pochi metri dalla MM Bande Nere, in condominio immerso nel verde con servizio di portineria diurno, proponiamo al quarto piano luminoso e silenzioso appartamento di 117 mq. con tripla esposizione e due ampie terrazze. L’immobile, in discrete condizioni è cosi composto, ingresso, ampio salone doppio angolare affacciato sulla prima terrazza, cucina abitabile, bagno di servizio/lavanderia finestrato, camera matrimoniale con esposizione angolare e affaccio sulla seconda terrazza, ulteriore bagno finestrato, seconda camera, ripostiglio. Cantina e solaio. Possibilità box. Libero

Fino a 100 m²

VENDITA
VIA CASALE 6
MILANO
AMPO MONOLOCALE CON TAVERNA
Rif. Casale52mq
Comune/Città: Milano
Zona: Navigli - Porta Genova
Anno di costruzione stabile: 2000
M²: 52 m²
Piano Terra
Prezzo: € 375.000,00
Spese Condominiale € 100 mensili
Nel cuore pulsante dei Navigli, in una delle zone più affascinanti e ricercate di Milano, proponiamo in vendita un raffinato e ampio monolocale con annessa taverna di 52 mq, situato al piano terra di un prestigioso stabile “Vecchia Milano”, recentemente ristrutturato nelle parti comuni.
 
 L’immobile, immerso nella quiete della zona pedonale di via Casale, a pochi metri dalla Stazione Porta Genova e immerso nella tipica atmosfera dei Navigli si distingue per l’atmosfera calda e accogliente dei dettagli originali sapientemente conservati e per gli spazi ampi e versatili. L’ambiente principale, di generosa metratura, accoglie una luminosa zona giorno con angolo cottura, confortevole area notte e bagno. Completa la proprietà un locale taverna collegato da scala interna con ulteriore bagno, ideale come studio privato, area relax o spazio hobby.
VENDITA
VIA LIVIGNO 8
MILANO
AMPO BILOCALE CON GRANDE BALCONATA
Rif. Livigno62mq
Comune/Città: Milano
Zona: Maciachini
Anno di costruzione stabile: 2012
M²: 57 m² oltre 15 mq di balconata
Piano Primo
Prezzo: € 345.000,00
Spese Condominiale € 150 mensili
A pochi passi dalla fermata MM Maciachini, nella tranquilla e residenziale Via Livigno, proponiamo in vendita un elegante bilocale di 57 mq, impreziosito da una spaziosa balconata di 15 mq, all’interno di uno stabile del 1954 finemente riqualificato nel 2012, dotato di servizio di portineria.
L’appartamento, situato al primo piano alto (con piano rialzato sottostante), si affaccia completamente su un silenzioso cortile interno, garantendo tranquillità e luminosità durante tutto l’arco della giornata.
Recentemente ristrutturato con finiture di pregio, l’immobile si compone di: ampio soggiorno doppio con moderna cucina a vista arredata, ampia camera matrimoniale bagno finestrato con doccia e comodo ripostiglio/lavanderia. Pavimenti in parquet in tutta la casa, elegante gres nel bagno, predisposizione per l’impianto di aria condizionata, infissi doppio vetro alluminio taglio termico. Ottime condizioni. Libero subito, pronto per essere abitato.
Una soluzione ideale per chi cerca comfort, eleganza e una posizione strategica ben servita dai mezzi pubblici.
SOSPESO
VENDITA
VIA COLLEONI 40
BERGAMO - CITTA' ALTA
AMPIO BILOCALE
STABILE D'EPOCA
Rif. BergamoBilo
Comune/Città: Bergamo
Zona: Città Alta
Anno di costruzione stabile: 1900
M²: 70 m²
Piano Terzo
Prezzo: €335.000,00
Spese Condominiale € 60 mensili
Nel cuore dell’incantevole Bergamo Alta, all’interno di una palazzina d’epoca di grande fascino affacciata su Piazza Lorenzo Mascheroni, proponiamo in vendita un raffinato bilocale posto al terzo piano senza ascensore.
L’appartamento, curato nei dettagli e perfettamente inserito nel contesto storico, si distingue per la sua luminosità e per l’atmosfera accogliente che unisce il carattere d’altri tempi al comfort moderno.
La disposizione interna prevede un ingresso su zona living con cucina a vista, una camera matrimoniale ampia e silenziosa e un grande bagno finestrato.
Ideale come abitazione principale o come investimento di pregio per chi desidera un punto d’appoggio nel cuore della Città Alta, questo appartamento rappresenta una perfetta sintesi tra stile, storia e comodità.
 
VENDITA
VIA PIETRO RUBENS 10 MILANO
AMPO BILOCALE
STABILE D'EPOCA
IN CLASSE "A"
Rif. Rubens10 - 3L
Comune/Città: Milano
Zona: De Angeli
Anno di costruzione stabile: 1936
M²: 68 m²
Piano Terzo
Prezzo: € 495.000,00
Spese Condominiale € 150 mensili
Via Rubens 10 – Eleganza, Storia e Comfort Moderno
 L’immobile è situato in una delle zone più richieste di Milano, a pochi passi da Piazza De Angeli e Via Marghera, rinomate per la vivace offerta commerciale, i ristoranti, le boutique e i locali storici della città. La posizione è perfettamente servita dalla metropolitana (M1 De Angeli a soli 3 minuti a piedi), oltre che da numerose linee di superficie, che garantiscono rapidi collegamenti con il centro città, CityLife e le principali arterie milanesi. Ideale per chi cerca comfort, servizi e vivibilità in un contesto elegante e silenzioso.
 In uno splendido palazzo d’epoca del 1936, completamente ristrutturato nel 2013-2014 e portato in classe energetica A, proponiamo in vendita un elegante bilocale di circa 68 mq al terzo piano, con doppia esposizione interna che garantisce tranquillità e luminosità.
 Lo stabile, dotato di servizio di portineria, è stato oggetto di un’attenta riqualificazione con cappotto termico, impianto fotovoltaico, sistema di condizionamento centralizzato, riscaldamento e raffrescamento a pavimento e impianto di deumidificazione.
 L’appartamento si distingue per il taglio razionale e l’ottima distribuzione degli spazi. È composto da: ingresso, ampia zona living con cucina a vista e balcone, spaziosa camera matrimoniale con cabina armadio, bagno finestrato con doccia, ampio e funzionale ripostiglio/lavanderia
 Completano la proprietà finiture di pregio e  la possibilità di arredi su misura progettati da Architetto. 
  
SOSPESO
 
VENDITA
VIA GLUCK 45 - MILANO
LOFT ABITATIVO
NUOVA COSTRUZIONE
Rif. GluckL1
Comune/Città: Milano
Zona: Stazione Centrale
Anno di costruzione stabile: 2025
M²: 52 m²
Piano Terra
Giardino di mq 4,5 in uso esclusivo
Prezzo: € 296.000,00
Spese Condominiale € 80 mensili
APE: In corso di certificazione
Nel cuore di Milano, tra il vibrante quartiere Nolo e la residenziale Maggiolina, emerge un progetto residenziale che incarna il perfetto equilibrio tra modernità e storicità. Situato nella caratteristica e storica via Gluck, questo nuovo complesso abitativo è posizionato strategicamente a pochi passi dalla servita Stazione Centrale, garantendo così un facile accesso ai principali servizi e ai mezzi di trasporto.
 
 Il Progetto conta poche unità residenziali, progettate secondo elevati standard qualitativi. I moderni loft abitativi, classificati in classe energetica A, sono free gas e dotati di tutti i comfort necessari per una vita contemporanea. Ogni unità si affaccia su una corte interna, un elemento che non solo amplifica la luminosità degli spazi ma assicura anche un ambiente tranquillo e riservato.
 
 La specifica unità immobiliare L1, di 52 mq, si sviluppa su due livelli e gode di un ingresso indipendente direttamente dalla corte al piano terra un piccolo giardino in uso esclusivo di 4,5 mq, una razionale zona giorno con cucina a vista, bagno e scala interna moderna che accompagna al piano superiore dove si trova la zona notte.
 Le finiture di alta qualità del Capitolato di Pregio, conferiscono a questo loft un’aria di sofisticata eleganza. Inoltre, l'unità è dotata di un impianto di riscaldamento e raffrescamento totalmente autonomo; la produzione di acqua calda sanitaria è gestita tramite un boiler elettrico controllabile a distanza tramite WiFi, offrendo così una gestione intelligente e moderna del consumo energetico.
 
 La consegna è prevista per luglio 2025, momento in cui i nuovi proprietari potranno godere appieno di questa straordinaria opportunità abitativa. È inoltre disponibile la possibilità di ulteriori unità immobiliari con diverse metrature, ideali per chi desidera personalizzare ulteriormente la propria esperienza abitativa.
 
 In conclusione, questo progetto rappresenta un’eccezionale occasione per chi desidera vivere in una zona dinamica e storica di Milano, senza rinunciare ai comfort moderni e a spazi pensati per il benessere quotidiano.
VENDITA
VIA GLUCK 45 - MILANO
LOFT ABITATIVO
NUOVA COSTRUZIONE
Rif. GluckL8
Comune/Città: Milano
Zona: Stazione Centrale
Anno di costruzione stabile: 2025
M²: 48 m²
Piano Terra
Giardino di mq 7 in uso esclusivo
Prezzo: € 265.000,00
Spese Condominiale € 80 mensili
APE: In corso di certificazione
Nel cuore di Milano, tra il vibrante quartiere Nolo e la residenziale Maggiolina, emerge un progetto residenziale che incarna il perfetto equilibrio tra modernità e storicità. Situato nella caratteristica e storica via Gluck, questo nuovo complesso abitativo è posizionato strategicamente a pochi passi dalla servita Stazione Centrale, garantendo così un facile accesso ai principali servizi e ai mezzi di trasporto.
 
 Il Progetto conta poche unità residenziali, progettate secondo elevati standard qualitativi. I moderni loft abitativi, classificati in classe energetica A, sono free gas e dotati di tutti i comfort necessari per una vita contemporanea. Ogni unità si affaccia su una corte interna, un elemento che non solo amplifica la luminosità degli spazi ma assicura anche un ambiente tranquillo e riservato.
 
 La specifica unità immobiliare L1, di 52 mq, si sviluppa su due livelli e gode di un ingresso indipendente direttamente dalla corte al piano terra un piccolo giardino in uso esclusivo di 4,5 mq, una razionale zona giorno con cucina a vista, bagno e scala interna moderna che accompagna al piano superiore dove si trova la zona notte.
 Le finiture di alta qualità del Capitolato di Pregio, conferiscono a questo loft un’aria di sofisticata eleganza. Inoltre, l'unità è dotata di un impianto di riscaldamento e raffrescamento totalmente autonomo; la produzione di acqua calda sanitaria è gestita tramite un boiler elettrico controllabile a distanza tramite WiFi, offrendo così una gestione intelligente e moderna del consumo energetico.
 
 La consegna è prevista per luglio 2025, momento in cui i nuovi proprietari potranno godere appieno di questa straordinaria opportunità abitativa. È inoltre disponibile la possibilità di ulteriori unità immobiliari con diverse metrature, ideali per chi desidera personalizzare ulteriormente la propria esperienza abitativa.
 
 In conclusione, questo progetto rappresenta un’eccezionale occasione per chi desidera vivere in una zona dinamica e storica di Milano, senza rinunciare ai comfort moderni e a spazi pensati per il benessere quotidiano.
VENDITA
P.ZA DE ANGELI 14
Bilocale 89 mq - 4° piano
Rif. DeAngeli-89mq
Comune/Città: Milano
Zona: De Angeli / Marghera / Vercelli
Anno di costruzione stabile: 1965
M²: 89 m²
Piano 4°
Cantina piano S1
Prezzo: € 630.000,00
Spese Condominiale € 270 mensili
APE: In corso di certificazione
Siamo lieti di presentare un'eccellente opportunità di acquisto per un signorile appartamento di 89 mq situato in una delle zone più residenziali e vivaci di Milano, precisamente in Piazza De Angeli 14. Questo immobile, ottimamente servito da tutti i mezzi di trasporto pubblico che garantiscono un accesso facile e veloce al centro città e a tutte le principali aree di interesse metropolitano.
 
 L'appartamento, sito al 4° piano di uno stabile signorile, è stato recentemente oggetto di totale ristrutturazione con finiture di alta qualità. La doppia esposizione assicura luminosità e freschezza durante tutto l'arco della giornata. Gli spazi sono ben suddivisi e danno vita ad un ampio bilocale di 89 mq che con qualche intervento può essere trasformato in trilocale ma che oggi è così composto: ampio ingresso accogliente, grande soggiorno separato dotato di balcone, spaziosa camera matrimoniale, grande cabina armadio, cucinotto arredato e finestrato con annessa zona pranzo, perfetto per cene intime e conviviali, ampio bagno finestrato, fornito di tutti i comfort necessari e di angolo lavanderia.
 
 L’appartamento è impreziosito da parquet di pregio, infissi nuovi che assicurano un’ottima insonorizzazione, e un sistema di aria condizionata per garantire il massimo del comfort in ogni stagione. Viene eventualmente venduto totalmente arredato. 
 
 Questa è un'opportunità imperdibile per chi desidera un appartamento pronto da abitare e  vivere in una delle principali zone commerciali e residenziali di Milano, ricca di servizi e comodità. Cantina. LIBERO. 
Sospeso
VENDITA
P.ZA MELOZZO DA FORLI' 5
Trilocale 87 mq
Rif. MelozzoDaForlì87
Comune/Città: Milano
Zona: Rembrandt - Mille lire
Anno di costruzione stabile: 1960
M²: 87 m²
Piano Primo
Prezzo: € 488.000,00
Spese Condominiale € 200 mensili
APE: In corso di certificazione
Piazza Melozzo da Forlì 5, situato tra via Rembrandt e via Mille Lire, proponiamo in vendita raffinato trilocale di 87 mq, recentemente ristrutturato e parzialmente arredato. L'appartamento, luminoso e silenzioso, è ubicato al primo piano alto di uno stabile signorile dotato di portineria attiva mezza giornata.
 Grazie alla sua tripla esposizione, l'immobile offre un ambiente luminoso, accogliente e piacevole, ideale per chi ricerca comfort e stile. La composizione interna è la seguente:
 ampio ingresso, zona living con balcone e cucina a vista arredata su misura con eleganza e funzionalità, una prima camera matrimoniale spaziosa e luminosa, una seconda camera matrimoniale, anch’essa molto ampia,  dotata di portafinestra e secondo balcone, bagno finestrato (possibilità di realizzare facilmente secondo bagno), aria condizionata in tutti gli ambienti e cantina. 
 Per ulteriori informazioni o per organizzare una visita, non esitate a contattarci.
LOCAZIONE
VIA DIOTTI 17
QUINTO ROMANO
trilocale arredato 100 mq
terrazzi
box doppio
Rif. Diotti Locazione
Comune/Città: Milano
Zona: Quinto Romano
Anno di costruzione stabile: 2015
M²: 100 m²
Piano Secondo e Terzo
Canone mensile € 1.500,00
Spese Condominiale € 130 mensili
APE: A1 - 104,21 Kwh/mq
Nelle immediate vicinanze di Quinto Romano, in Vi Diotti 17, in contesto tranquillo e ben servito, proponiamo in stabile signorile di recente costruzione in Classe Energetica A1, splendido e luminoso trilocale di 100 mq su due livelli sito al 2° e 3° e ultimo piano, completamente ristrutturato e arredato.
L’immobile in perfetto stato, è dotato di aria condizionata, riscaldamento autonomo e impianto d’allarme ed è così suddiviso: ingresso, ampio soggiorno doppio, cucina semi abitabile, balconcino, grande bagno finestrato, ripostiglio e ampio terrazzo vivibile con comodo locale esterno lavanderia; coreografica e funzionale scala conduce al piano superiore composto da due ampie camere da letto entrambe con terrazzino e grande bagno finestrato. Box Doppio.
NON DISPONIBILE
VENDITA
VIA ARZAGA 24
MM Bande Nere
Bilocale 51 mq
Rif. Arzaga51mq
Comune/Città: Milano
Zona: Soderini - MM Bande Nere
Anno di costruzione stabile: 1970
M²: 51 m²
Piano Terra
Prezzo: € 200.000
Spese Condominiale € 120 mensili
APE: in corso di certificazione
In Via Arzaga 24, immerso nel residenziale e tranquillo quartiere Soderini/San Gimignano, a pochi metri dalla MM Bande Nere, proponiamo, in stabile signorile con portineria interessante e ampio bilocale di 50 mq in ottimo stato al piano terra ideale come investimento, libero e arredato. L’appartamento, recentemente ristrutturato, è un ampio open-space con soppalco e bagno finestrato con doppia esposizione e aria condizionata. Cantina.
SOSPESO
VENDITA
VIA BULLONA 12
Ad. C.so Sempione - Losanna
Loft Abitativo 84 mq
Rif. Loft84 - Bullona
Comune/Città: Milano
Zona: Corso Sempione - MM Gerusalemme
Anno di costruzione stabile: 2024
M²: 84 m²
Piano Terra e 1°
Prezzo: € 495.000
Spese Condominiale € 50 mensili
APE: in corso di certificazione
NUOVO
Nella tranquilla via Bullona, nelle immediate vicinanze di Corso Sempione e via Losanna, a pochi metri da tutti i servizi commerciali e mezzi pubblici (MM Gerusalemme), proponiamo all’interno di un piccolo Palazzo d’epoca esclusivo Loft Abitativo Gas Free di NUOVA COSTRUZIONE che consente di vivere in città l’esigenza di ampi spazi interni e ambienti contemporanei e moderni in classe energetica A.
L’immobile, di 84 mq, è ben suddiviso con ambienti contemporanei e moderni. Così distribuito: ingresso privato da corte, ampia zona living con cucina a vista e zona pranzo, camera matrimoniale, bagno e lavanderia oltre a giardino/cortile privato riservato; al piano superiore con ampie altezze, ampia camera matrimoniale. Capitolato di pregio. Nuovo.
VENDUTO
VENDITA
VIA BULLONA 12
Ad. C.so Sempione - Losanna
Appartamento di 36 mq su due livelli
Rif. DuplexBullona
Comune/Città: Milano
Zona: Corso Sempione - MM Gerusalemme
Anno di costruzione stabile: 1940
M²: 36 m²
Piano Terra e S1
Prezzo: € 195.000
Spese Condominiale € 40 mensili
APE: G - 207,63 Kwh/mq
RISTRUTTURATO
Nella tranquilla via Bullona, nelle immediate vicinanze di Corso Sempione e via Losanna, a pochi metri da tutti i servizi commerciali e mezzi pubblici (MM Gerusalemme), proponiamo in stabile anni ’40, interessante appartamento di 36 mq su due livelli completamente ristrutturato e arredato su misura, ideale come investimento. Possibilità ottimi rendimenti. LIBERO.
VENDUTO
VENDITA
Via Canova 13
Arco della Pace
Rif. Canova13-Trilocale
Comune/Città: Milano
Zona: Arco della Pace
Anno di costruzione stabile: 1960
M²: 71 m²
Piano Rialzato
Ascensore
Richiesta € 615.000
Spese Condominiale € 210 mensili
APE: D - 224,21 kwh/mq
DA RISTRUTTURARE
Nelle immediate vicinanze dell’Arco della Pace e a pochi passi dal Parco Sempione, in contesto signorile con portineria, proponiamo interessante e tranquillo Ufficio, oggi adibito a Studio medico di mq 71 sito al piano rialzato in ottimo stato facilmente CONVERTIBILE in piccolo TRILOCALE residenziale. L’immobile, nell’ipotesi di progetto abitativo potrebbe essere così suddiviso: ingresso, soggiorno con cucina a vista, 2 camere da letto, 2 bagni oltre ampia cabina armadio. Aria Condizionata, infissi nuovi.
VENDITA
Via Prampolini 8
MM Maciachini
Rif. Prampolini67
Comune/Città: Milano
Zona: MM Maciachini
Anno di costruzione stabile: 2012
M²: 67 m²
Piano Rialzato
Ascensore
Richiesta € 270.000
Spese Condominiale € 160 mensili
APE: in corso di certificazione
DA RISTRUTTURARE
A pochi metri dalla MM Maciachini, in Via Prampolini 8, in stabile completamente riqualificato nel 2012 dotato di riscaldamento centralizzato a contabilizzazione, pannelli solari per la l’acqua calda, servizio di portineria, proponiamo interessante e ampio bilocale di 67 mq, trasformabile in trilocale data la razionalità degli spazi, piano rialzato, con tranquillo affaccio sul giardino condominiale, ideale anche come investimento da mettere a reddito. L’appartamento è da ristrutturare. Infissi nuovi già presenti in alluminio tagli termico doppio vetro e nuova porta blindata. L’unità immobiliare ad oggi è così composta: ingresso, soggiorno, cucina abitabile, camera matrimoniale, cabina armadio e ampio bagno finestrato.
VENDUTO
LOCAZIONE
STRESA (VB)
viale Virgilio 36
Ampio Bilocale arredato con giardino, porticato e terrazzo
Rif. StresaBiloGiardino
Comune/Città: Stresa
Zona: Centro
Anno di costruzione stabile: 2002
M²: 57 m² oltre 40 mq di giardino
Piano Terra
Ascensore
Prezzo su richiesta
Spese Condominiale € 80 mensili
APE: F - 265,40 KwH/mq
RISTRUTTURATO
Nella splendida cornice di Stresa, Viale Virgilio n.36, in contesto silenzioso e signorile affittasi loft di 50 mq. completamente ristrutturato e arredato nuovo oltre portico, giardino di 40 mq. e terrazzino.
L’appartamento bi-esposto, suddiviso a bilocale da arredamento è cosi composto: ingresso, soggiorno con cucina a vista, camera matrimoniale con armadio e cabina armadio oltre ampio bagno finestrato.
Tre ampie porte finestre consento una meravigliosa godibilità di tutti gli spazi esterni.
L’appartamento è dotato di aria condizionata, lavatrice e corredo completo.
NON DISPONIBILE
LOCAZIONE
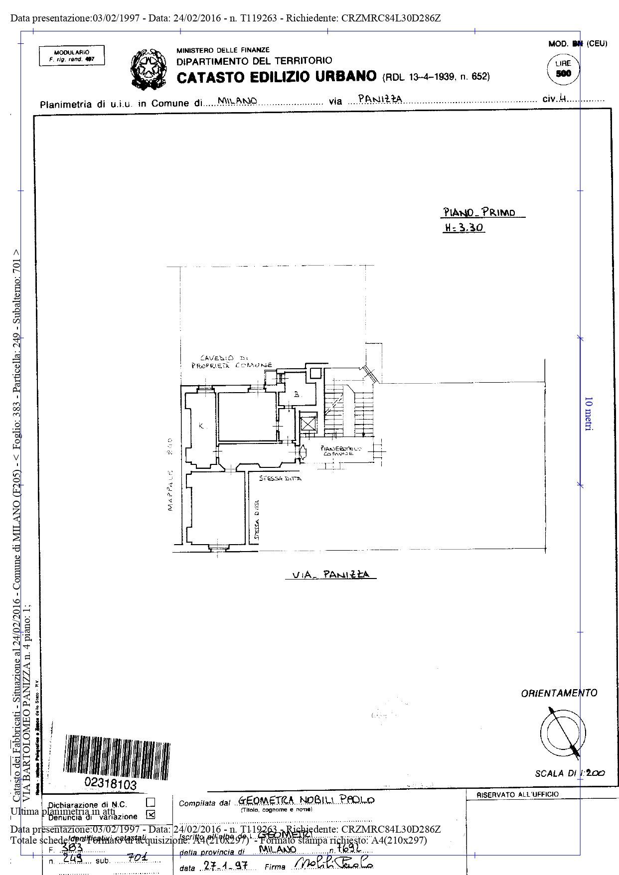
VIA PANIZZA 4
Ad. Corso Vercelli
Ampio Bilocale arredato
Rif. Panizza4
Comune/Città: Milano
Zona: Corso Vercelli - MM Conciliazione
Anno di costruzione stabile: 1900
M²: 76 m²
Piano 1°
Ascensore
Prezzo: 1.900,00 € mensili
Spese Condominiale € 315 mensili
APE: D - 117,40 KwH/mq
Contratto uso abitativo 4 anni + 4 anni
RISTRUTTURATO
Nella residenziale e tranquilla via Panizza, a pochi metri dai giardini di Mario Pagano e a ridosso di corso Vercelli e piazzale Baracca, proponiamo splendido e ampio bilocale di 76 mq con doppia esposizione sito al primo piano di un prestigioso Palazzo dei primi del ‘900. L’appartamento, recentemente ristrutturato è così composto: ampio ingresso, soggiorno, cucina separata semi abitabile, camera matrimoniale e ampio bagno finestrato con balconcino dotato di doccia e vasca. L’immobile è completamente ed elegantemente arredato. Aria condizionata. Servizio portineria. LIBERO
NON DISPONIBILE
LOCAZIONE
CORSO GARIBALDI 35
Basilica di san Sempliciano
Brera
Bilocale arredato
 
Rif. Garibaldi-Bilo
Comune/Città: Milano
Zona: Corso Garibaldi / Brera
Anno di costruzione stabile: 1900
M²: 50 m²
Piano 3°
No Ascensore
Prezzo: 1.550,00 € mensili
Spese Condominiale € 100 mensili
APE: in corso di certificazione
RISTRUTTURATO
Nello storico e pittoresco Corso Garibaldi, nel cuore della città Meneghina, inserito nella cornice della splendida Basilica di San Sempliciano, in caratteristico stabile “Vecchia Milano” dei primi del ‘900 ben conservato, proponiamo al terzo piano (senza ascensore) bilocale di 50 mq arredato.
L’appartamento, soleggiato e silenzioso con gradevoli affacci sui Giardini del Chiostro Bramantesco, è così composto: zona living con cucina a vista completamente arredata nuova e corredata di elettrodomestici, camera e bagno finestrato con doccia. Libero.
NON DISPONIBILE
LOCAZIONE
VIA TARANTO 2/A
Barona - Faenza
Trilocale con posto auto
Rif. Faenza84
Comune/Città: Milano
Zona: Barona / Santa Rita da Cascia
Anno di costruzione stabile: 2000
M²: 84 m²
Piano 4°
Ascensore
Prezzo: 1.500,00 € mensili
Spese Condominiale € 100 mensili
APE: D - 142,51 kwh/mq
RISTRUTTURATO
Tra Via Faenza e Via Taranto, a pochi metri dalla Basilica di Santa Rita da Cascia, ben servito dai mezzi pubblici e da tutti i servizi commerciali, in condominio signorile ristrutturato in tutte le parti comuni, proponiamo in locazione trilocale di 84 mq in buono stato, sito al 4° piano con doppia esposizione, tranquillo e soleggiato. L’appartamento, disponibile da OTTOBRE 2024, è così composto: ingresso, soggiorno con ampia balconata, cucina abitabile arredata nuova con ulteriore balcone, 2 camere da letto matrimoniali, doppi servizi. L’immobile dispone di cantina e posto auto scoperto in cortile.
NON DISPONIBILE
MM Maciachini
Via Prampolini 8
Bilocale con terrazzo
Rif. Prampolini61
Comune/Città: Milano
Zona: MM Maciachini
Anno di costruzione stabile: 2012
M²: 61 m²
terrazzo
Piano 1°
Ascensore
Prezzo: 275.000 €
APE: B - 50 KwH/mq
RISTRUTTURATO
A pochi metri dalla MM Maciachini, in Via Prampolini 8, in stabile completamente riqualificato nel 2012, con servizio di portineria, proponiamo interessante appartamento di 61 mq in ottimo stato così composto: ingresso, soggiorno, cucina semi abitabile entrambi con accesso diretto all’ampio e tranquillo terrazzo, grande camera matrimoniale con accesso alla balconata e bagno finestrato. LIBERO
VENDUTO
Nolo - MM Pasteur
via Varanini 28
Trilocale NUOVO
Rif. VR91
Comune/Città: Milano
Zona: Nolo - MM Pasteur
Anno di costruzione stabile: 1965
M²: 91 m²
cantina
Piano 2°
Ascensore
Prezzo: 460.000 €
APE: G - 171 KwH/mq
RISTRUTTURATO NUOVO
Immerso nel quartiere Nolo, nelle immediate vicinanze della MM Pasteur, in stabile anni ‘60 con portineria tutto il giorno, proponiamo splendido e silenzioso trilocale di 91 mq commerciali completamente ristrutturato NUOVO, sito al 2° piano con tripla esposizione. L’ appartamento, in fase di totale ristrutturazione e rifinito con materiali di pregio, è così composto: ingresso, grande open-space soggiorno e cucina con doppio accesso alla balconata, due grandi camere matrimoniali, 2 bagni entrambi con finestra e balcone. Aria Condizionata, tapparelle elettriche. Consegna aprile 2024. Cantina.
VENDUTO
Via Carlo Farini 78
Attico di nuova realizzazione
Rif. VR87
Comune/Città: Milano
Zona: Farini - Valtellina
Anno di costruzione stabile: 1930
M²: 87 m²
Piano 4° 58 mq e 5° 58 mq
Ascensore
Prezzo: 495.000 €
APE: E - 163,41 KwH/mq annuo
NUOVO
Via Carlo Farini 78, in elegante stabile vecchia Milano degli anni ’30 dotato di ascensore proponiamo interessante attico su due livelli totalmente ristrutturato e riprogettato da architetto con un design moderno e fresco. L’appartamento di 87 mq comm. , rifinito con materiali di pregio, si sviluppa su due livelli (4° e 5° piano) entrambi di 58 mq e gode di un doppio affaccio est-ovest, luminoso e silenzioso. L’immobile è così composto: al 4° piano ingresso, zona living con cucina a vista, ampia camera matrimoniale e bagno; il 5° piano, collegato da coreografica scala interna, è composto da due ampi ambienti con luce diretta dai lucernai.
Via Federico Chopin, 31
Appartamento TRILOCALE
Piano Secondo
Rif. VR85
Comune/Città: Milano
Zona: Vigentino / Ripamonti
Anno di costruzione stabile: 1960
M²: 85 m²
Prezzo: 320.000 €
APE: G- 213,02 Kwh/mq
Piano: 2°
Cantina - piano S1
Possibilità BOX Singolo € 30.000
Nelle immediate vicinanze di via Ripamonti, nella tranquilla Via Chopin, ben servita da tutti mezzi pubblici oltre che da aree verdi e servizi commerciali, proponiamo interessante e tranquillo appartamento di 85 mq con doppia esposizione, da ristrutturare.
L’immobile, sito al secondo piano di uno stabile medio signorile immerso nei giardini, è libero e così composto: ingresso, soggiorno con ampia balconata, cucina abitabile con balcone, due camere, grande bagno finestrato e ripostiglio. Cantina e possibilità box singolo.
VENDUTO
Via Mercadante, 4
Appartamento TRILOCALE
Piano Sesto- ATTICO
Rif. VR99
Comune/Città: Milano
Zona: MM Caiazzo
Anno di costruzione stabile: primi '900
Anno di riqualificazione stabile: 2023
M²: 94 m² oltre 12 m² terrazzo
Prezzo: 803.000 €
NUOVO - IN CORSO DI REALIZZAZIONE-
CONSEGNA LUGLIO 2023
ACE: in corso di certificazione
Piano: 6- ULTIMO
VENDUTO
Via Mercandante, 4
Appartamento - M4.01.02
Piano Rialzato
Rif. VR85
Comune/Città: Milano
Zona: MM Caiazzo
Anno di costruzione stabile: 1920
Anno di ristrutturazione: 2023
M²: 85 m²
69 mq di abitazione oltre 49 mq di terrazzo/giardino
Prezzo: 500.000 €
ACE: in corso di certificazione
Piano: T
VENDUTO
Via Delle Leghe 23 - MM Pasteur
appartamento di 70 mq
Rif. V.DelleLeghe
Comune/Città: Milano
Zona: MM Pasteur - piazza Morbegno
Anno di costruzione: 1930
M²: m²70
Prezzo: 220.000 €
ACE: G - 174 Kwh- mq
Piano Terra
A pochi metri dalla MM Pasteur, nella tranquilla via Delle Leghe, in tipico stabile Vecchia Milano, all’interno del cortile, proponiamo interessante e silenziosa soluzione con ingresso indipendente da ristrutturare di 70 mq. L’immobile, oggi accatastato ufficio, ben si adatta ad essere trasformato in un’abitazione dal fascino del loft che potrebbe così comporsi: ingresso indipendente dal cortile, ampia zona living con cucina a vista, grande camera matrimoniale, bagno, lavanderia e ripostiglio. LIBERO
VENDUTO
Appartamento FB68 - ultimo piano Terrazzo e giardino
Rif. VRFB68
Comune/Città: Milano
Zona: Castello Sforzesco
Anno di costruzione: 1900
M²: m²70
Prezzo: 780.000 €
ACE: C - 132,05 Kwh- mq
Piano: 2° e ultimo
A ridosso della suggestiva Piazza Castello, nella signorile Foro Buonaparte in palazzo dei primi del Novecento con servizio di portineria e vigilanza, proponiamo al secondo e ultimo piano di un silenzioso corpo interno bilocale di 47 mq ristrutturato e dotato di tutti i comforts, rifinito con materiali di pregio. L’appartamento, parzialmente arredato su misura, è composto da zona living con ampia vetrata che si affaccia sullo splendido terrazzo di 30 mq oltre 37 mq di giardino privato (in fase di piantumazione), angolo cottura, camera e bagno.
VIA LODOVICO IL MORO 139 ZONA NAVIGLI
Rif. VRBilo - VENDITA
Comune/Città: Milano
Zona: Navigli
M²: 50 m²
ACE: E - 83,80kWh/m²
€ 220.000
Piano: primo - senza ascensore
Descrizione
In via Lodovico il Moro, in contesto "Vecchia Milano" proponiamo interessante bilocale A REDDITO, elegantemente ristrutturato e arredato. L'immobile composto da soggiorno con camino e cucina a vista, camera matrimoniale e bagno. Doppia esposizione, termoautonomo e servizio di portineria mezza giornata. Possibilità posto auto.

Casa Vacanza

STRESA
LAGO MAGGIORE
Viale Virgilio 36
Rif. VRStresa -
LOCAZIONE TRANSITORIA - OTTOBRE 2024 / MAGGIO 2025
Comune/Città: Stresa (Verbania)
Mq: 58m² di abitazione oltre 40 mq di giardino
Prezzo su richiesta
spese condominiali € 80 mensili
ACE: F - 264,40 Kwh/mq
Piano: Terra
Ristrutturato e Arredato NUOVO
SOSPESO
Descrizione
Nella suggestiva ed esclusiva Madonna di Campiglio, in posizione centrale proponiamo luminoso appartamento di 90 mq al secondo piano composto da ingresso, soggiorno con splendido affaccio su ampia balconata, cucina semi abitabile, ripostiglio, 1 camera matrimoniale, 2 camere singole e bagno. 
CASTELVETRO PIACENTINO
Rif. VR - VENDITA
Comune/Città: Castelvetro Piacentino (PC)
Zona: strada Pavese
ACE: in attesa di certificazione
Casale indipendente
Prezzo € 290.000
Descrizione
Situato nelle tranquille e silenziose campagne piacentine - Castelvetro Piacentino - Strada Pavese, proponiamo interessante Casolare di 300 mq edificato su terreno di ca. 2800 mq. Completamente immerso nel verde, il casolare si sviluppa su due piani di ca. 120 mq l'uno oltre ad ampio porticato di ca. 45 mq e a locale autorimessa/ricovero attrezzi di ca. 90 mq. L'immobile è parzialmente ristrutturato e da ultimare (serramenti e rivestimenti).
INFO 02 84349557
MADONNA DI CAMPIGLIO
Rif. VR120 - VENDITA
Comune/Città: Madonna di Campiglio
Mq: 90 m²
Trattativa Riservata
ACE: G - 175 kwh/m²
Piano: Secondo
box
€ 950.000
Descrizione
Nella suggestiva ed esclusiva Madonna di Campiglio, in posizione centrale proponiamo luminoso appartamento di 90 mq al secondo piano composto da ingresso, soggiorno con splendido affaccio su ampia balconata, cucina semi abitabile, ripostiglio, 1 camera matrimoniale, 2 camere singole e bagno. 
CASA AL MARE - RAPALLO
Rif. VR120 - VENDITA
Comune/Città: Rapallo
Zona: San Michele di Pagana
Mq: 120 m²
Prezzo: € 690.000
ACE: G - 175 kwh/m²
Piano: terra
Descrizione
Sulle colline di Rapallo, in prestigioso contesto residenziale con piscina e campo da tennis condominiale, proponiamo splendido appartamento di 120 m² da personalizzare, affacciato su ampio giardino di proprietà con splendida vista mare, piccolo uliveto, solarium e grande veranda.

Arredare con Arte

Arredare con Arte
www.simonleegallery.com
L’uomo sin dalle sue origini ha utilizzato le pareti della propria abitazione non solo per esprimere se stesso, ma anche per rendere unico e a lui consueto lo spazio abitato.
Se volete una casa arredata con gusto e ricercata nei particolari non potete trascurare quello che appenderete alle pareti. In fondo basta poco per arredare casa con opere d’arte di valore, non occorre essere degli esperti collezionisti.
È in questo scenario che si inquadra perfettamente la SIMON LEE GALLERY, galleria d’arte moderna e contemporanea con sede a Londra e a Hong Kong.
Il progetto, già in corso d’opera, prevede la realizzazione di varie soluzioni abitative, dal monolocale a metrature più ampie con giardini in proprietà. La posizione interna e l’ottima distanza dagli edifici circostanti, garantisce luminosità e assoluto silenzio. Capitolato di pregio e possibilità di personalizzazione.
La galleria e’ a vostra disposizione per aiutarvi a trovare le opere che renderanno la vostra abitazione ancora piu personale con una vasta selezione di dipinti, sculture e disegni perfetti per qualsiasi casa, dalla classica alla moderna, fino ad arrivare al loft d’ambientazione newyorkese.
 
  
  
  
 











 
  
 











 
  
 











 
  
 







 
  
 
















 
  
 






 
  
 














 
  
 













 
  
 











 
  
  
  
 


















 
  
  
  
  
  
 





 
  
 






 
  
 







 
  
 





 
  
 








 
  
 

 
  
 







 
  
 








 
  
  
  
 







 
  
 





 
  
  
  
 









 
  
  
  
 







 
  
 









 
  
 










 
  
 











 
  
  
  
  
  
 













 
  
 









 
  
 











 
  
 








 
  
 







 
  
 







 
  
 






 
  
 






 
  
 







 
  
 









 
  
 



 
  
 








 
  
 









 
  
 







 
  
 







 
  
 


















 
  
 







 
  
 





 
  
 





 
  
 



 
  
 








 
  
 













 
  
  
  
 







 
  
  
  
 




 
  
 









 
  
 








